LOADING

137 Nelson Street Unit# 203, Brantford, Ont, N3S 4B5 $2,150 Monthly

(519) 757 7042

Generating Captcha

2823 sqft

$2,150 Monthly
Insurance

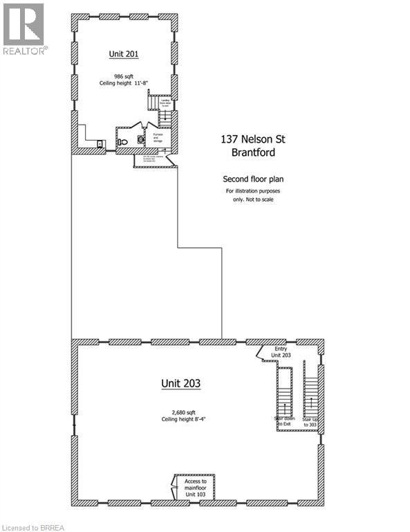
Just steps from Clarence Street and the core of downtown Brantford, this beautifully revitalized historic mixed-use building offers flexible leasing opportunities to suit a wide range of business needs. This second-floor 2,550 sq. ft. unit features 9-foot ceilings and is well suited for storage use or conversion to office or studio space.The building offers multiple unit configurations, including office, retail, private studio, warehousing, and storage options. Units may be leased individually or combined to create a customized footprint tailored to your operation. Need more space? This unit combines well with units 102/103 & 303 (MLS®#40801634 & 40801681).Each unit includes onsite parking and benefits from excellent access to public transit, the university campus, and downtown amenities. A rare opportunity to locate your business in a character-rich building offering modern functionality in a high-demand, central location. (id:51992)

Property Details

MLS® Number 40801664
Property Type Other
Amenities Near By Public Transit
Communication Type High Speed Internet
Community Features High Traffic Area

Building

Basement Type None
Exterior Finish Brick, Stucco
Fire Protection Alarm System, Security System
Stories Total 1
Size Exterior 2823.0000
Size Interior 2823 Sqft
Utility Water Municipal Water

Land

Acreage No
Land Amenities Public Transit
Sewer Municipal Sewage System
Size Frontage 108 Ft
Size Total Text Under 1/2 Acre
Zoning Description Ud